REQUEST A TOUR If you would like to see this home without being there in person, select the "Virtual Tour" option and your agent will contact you to discuss available opportunities.
In-PersonVirtual Tour

Listed by Kim Jergentz • Parkway Real Estate Co.
$ 60,000
Est. payment | /mo
10,019 Sqft Lot
$ 60,000
Est. payment | /mo
10,019 Sqft Lot
Key Details
Property Type Vacant Land
Listing Status Active
Purchase Type For Sale
MLS Listing ID SN-25135919
Lot Size 10,019 Sqft
Source California Regional Multiple Listing Service (CRMLS)
Property Description
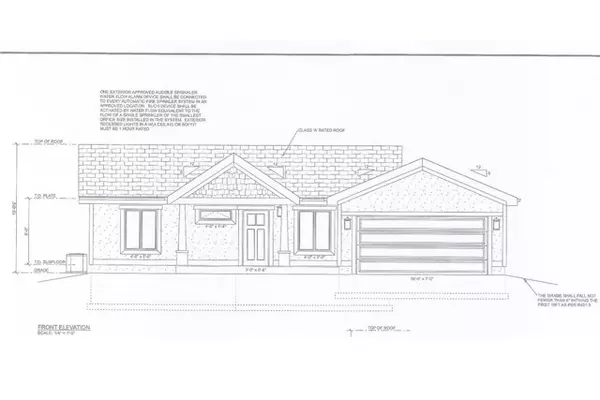
Prime Opportunity: Ready-to-Build Residential Lot with Approved Plans! Looking for a head start on your next residential project? This spacious 10,000 SF lot presents an exceptional turnkey opportunity for investors, developers, or owner-users looking to bring a new home to life—without the usual delays of starting from scratch! With approved plans already in place for a 972 SF, 2 bed/2 bath home plus an attached 462 SF garage, this property is primed for rapid development. Even better, the foundation and septic system are already installed, allowing you to fast-track construction and move toward completion much sooner than a ground-up build.
Location
State CA
County Butte
Zoning R3
Exterior
Community Features Rural
Utilities Available Water Available, Electricity Available
View Y/N Yes
Building
Lot Description 0-1 Unit/Acre
GET MORE INFORMATION

Marissa Buss & Danny Lampert
Lic# 01770909 | 01834114






