REQUEST A TOUR If you would like to see this home without being there in person, select the "Virtual Tour" option and your advisor will contact you to discuss available opportunities.
In-PersonVirtual Tour

Listed by Charles J Friedman • Charles Friedman, Broker
$ 69,500
Est. payment | /mo
0.43 Acres Lot
$ 69,500
Est. payment | /mo
0.43 Acres Lot
Key Details
Property Type Vacant Land
Listing Status Active
Purchase Type For Sale
MLS Listing ID NP-25257465
Lot Size 0.434 Acres
Source California Regional Multiple Listing Service (CRMLS)
Property Description
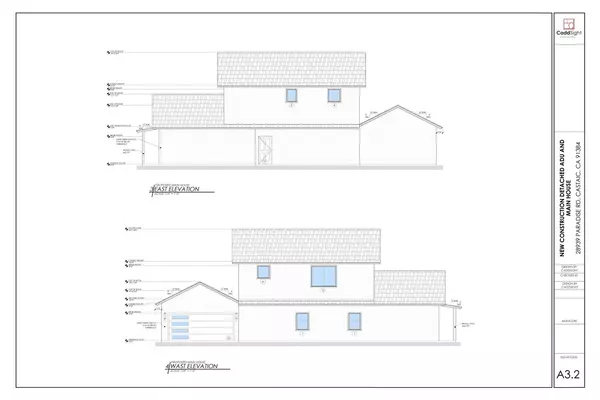
Large .434 Acre (18,915 SF) on Paradise Rd in Custom Val Verde area in Castaic, CA - SEE Proposed Plans for 1 Single Family House with approx 2,200 SF (plus attached garage) PLUS 1 detached ADU ("Accessory Dwelling Unit") just under 800 SF. Seller will consider owner financing to Buyers providing at least 50% cash at closing. All information and representations regarding square footage, dimensions, zoning, building requirements, utilities,etc. to be independently verified by Buyers and/or Buyers' agent with county authorities and relevant utilities.
Location
State CA
County Los Angeles
Area Vver - Val Verde
Zoning LCR1*
Exterior
Community Features Foothills
View Y/N Yes
View Hills, Mountain(s), See Remarks
Building
Lot Description Irregular Lot, Lot 10000-19999 Sqft, Rectangular Lot, Rolling Slope
Sewer Unknown
GET MORE INFORMATION

Marissa Buss & Danny Lampert
Lic# 01770909 | 01834114





